Apr

29

Mittwoch

Museumsmittwoch: Erläuterungen zum neuen Reservoir Schachen

Museumsmittwoch: Erläuterungen zum neuen Reservoir Schachen Ortsmuseum Untersiggenthal, Kirchweg 4, 5417 Untersiggenthal Tickets

Credits: Katja Stücheli

-
Ortsmuseum Untersiggenthal, Untersiggenthal (CH)

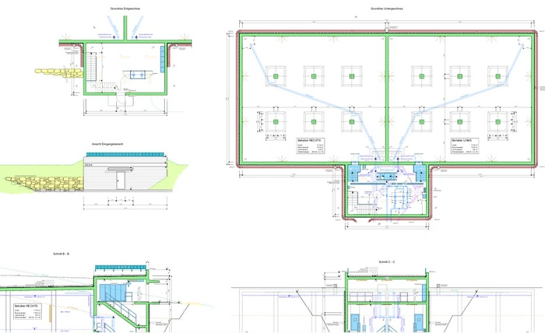
Bald wird der Spatenstich für das neue Reservoir Schachen in Untersiggenthal erfolgen. Es ist ein grosses und komplexes Bauwerk, welches von Michael Merkli, Bau und Planung der Gemeinde Untersiggenthal, betreut wird. An diesem Museumsmittwoch vom Mittwoch, 29. April um 18 Uhr im Ortsmuseum gibt Michael Merkli spannende Einblicke in die Planung des Reservoir Schachen. 

Veranstalter:in

Katja Stücheli

Total: XX.XX CHF

Infos

Ort:

Ortsmuseum Untersiggenthal, Kirchweg 4, Untersiggenthal, CH

Veranstalter:in

Museumsmittwoch: Erläuterungen zum neuen Reservoir Schachen wird organisiert durch:

Katja Stücheli